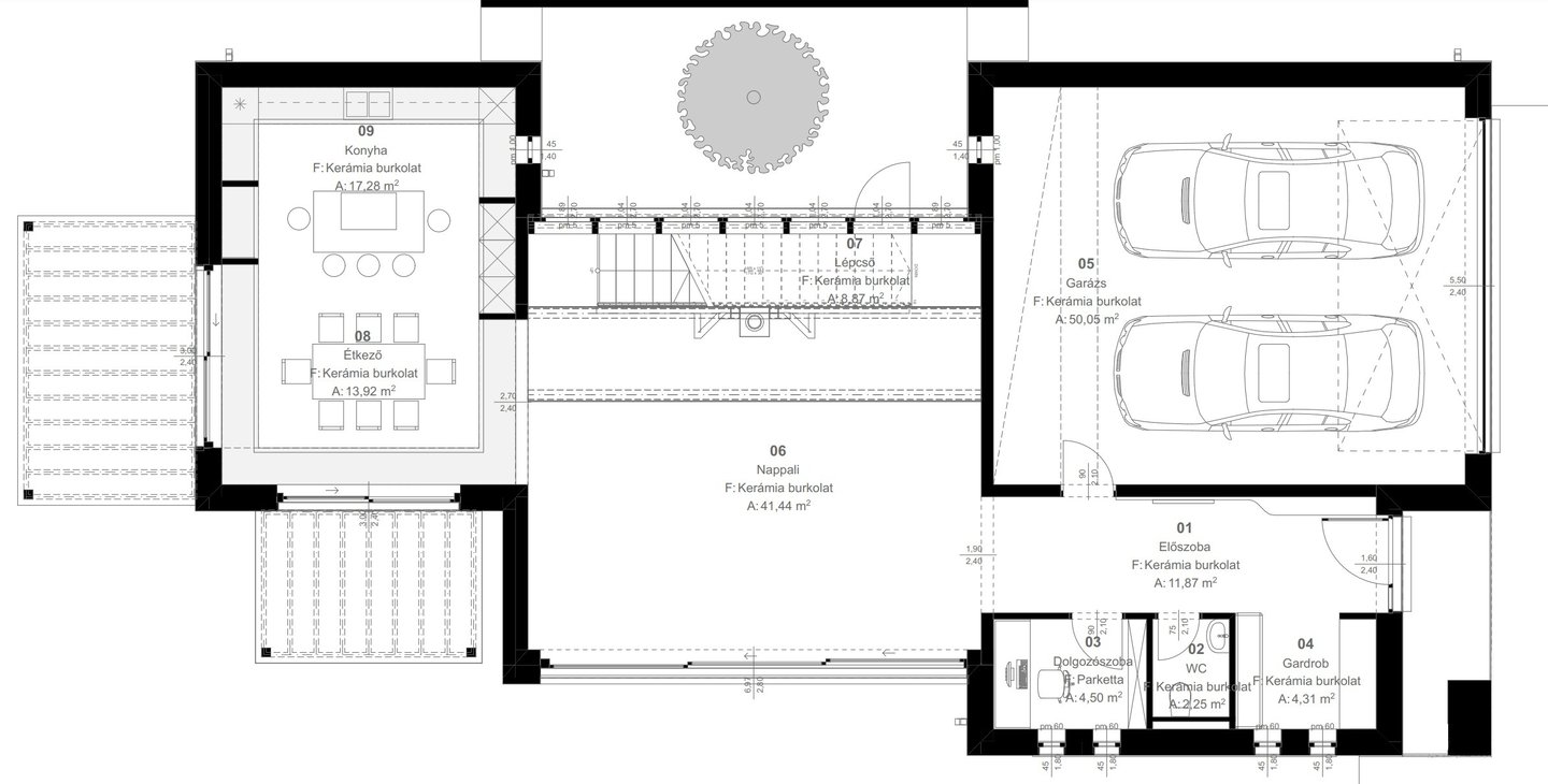
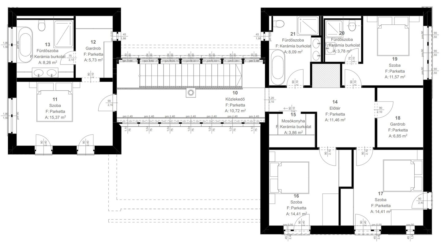
Alaprajzok
A földszinti és emeleti részletes, méretezett alaprajzok.
Földszint
A földszinten egy 30mˇ2-es konyha található étkezővel, egy 50mˇ2-es nappali dupla belmagassággal, egy vendég WC, egy dolgozószoba, az előszoba, valamint egy 50mˇ2-es kétállásos garázs.


Koppints a képre a nagyításhoz
Emelet
Az emeleten az egyik szárnyat a szülői lakosztály foglalja el (master bedroom, fürdőszoba, gardrób), a másik szárnyban pedig 3 lakószoba, 2 fürdőszoba, egy mosókonyha, gardrób és egy infraszauna kapott helyet. A két szárny közötti függőfolyosóról mindkét irányban panoráma nyílik a környékre.


Koppints a képre a nagyításhoz
Szerzői jogi nyilatkozat
A weblapon található képek és minden anyag az oldal tulajdonosának saját felvételei, vagy közlésük a szerzõ engedélyével történt. Az oldal tulajdonosának elõzetes írásos engedélye nélkül tilos ezek további sokszorosítása, megjelentetése, továbbítása vagy bármi módon való terjesztése.
Telefon
© 2026. Minden jog fenntartva.
